Nieuwe toekomst voor de Westhal in de maak

15 apr , 11:13Gemeente
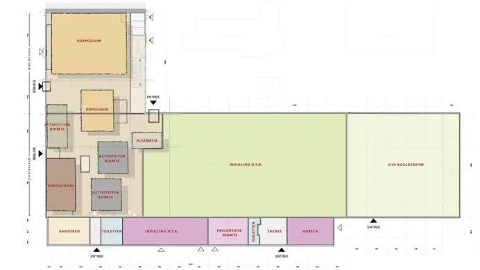
csm_PB35_-_Tekening_Westhal_a09a6e89ec
Gemeente Ede
Tekening Westhal Ede
De Westhal op het ENKA-terrein – tot 1 oktober nog het onderkomen van De Fietser – kan een eigentijdse, culturele en toegankelijke ontmoetingsplek worden, die de wijk én de stad verbindt. De gemeente Ede werkt samen met eigenaar BOEi aan een nieuwe toekomst voor dit markante gebouw.
In de afgelopen tijd zijn veel creatieve ideeën onderzocht voor de toekomst van het monumentale gebouw uit 1928, waaronder initiatieven van belangstellenden, suggesties vanuit de gemeenteraad en denkrichtingen van het college van burgemeester en wethouders. Het college ziet kansen voor een mix aan functies in de Westhal. De plannen bevinden zich nog in de ontwikkelfase; zowel het financiële plaatje als een eventuele gemeentelijke bijdrage moeten later worden bepaald. De gemeenteraad besluit daar op zijn vroegst dit najaar over, als de begroting voor de komende jaren wordt behandeld.
De Westhal heeft altijd een sleutelrol gespeeld in de economische en sociale ontwikkeling van Ede.
"We willen een nieuw hoofdstuk toevoegen aan de historie van de Westhal. Het kan een plek worden waar Edese jongeren, buurtbewoners, makers en organisaties elkaar vinden. Tal van functies komen samen: podiumkunst, urban street culture, creatieve activiteiten, talentontwikkeling, jongerenwerk en laagdrempelige zorg. Zo ontstaat een locatie die persoonlijke groei stimuleert én sociale verbinding versterkt. Hoewel er nog geen besluiten zijn genomen, vinden we het belangrijk om de omgeving en de gemeenteraad nu al mee te nemen in de richtingen die we verkennen. De Westhal is zo’n unieke plek; daar moeten bijzondere dingen gebeuren. Hierover gaan we in gesprek met de buurt. We horen graag van omwonenden waar we rekening mee moeten houden bij het verder uitwerken van de plannen."
Wethouder Peter de Pater

Cultuur, ontmoeting en innovatie onder één dak

De afgelopen maanden zijn in het kader van de haalbaarheidsstudie gesprekken gevoerd met verschillende partijen. Er wordt onderzocht of in een deel van de Westhal twee poppodia kunnen worden gerealiseerd: één met een capaciteit van ongeveer 400 bezoekers en één voor circa 150 bezoekers. Basisschool De Ontdekking kampt met ruimtegebrek, waardoor minimaal twee extra klaslokalen in de Westhal worden voorzien. Ook voor de wijkbewoners komt er ruimte. Een geplande ‘huiskamer voor de wijk’ moet een toegankelijke plek worden om elkaar te ontmoeten: om koffie te drinken, te spelen, samen te werken of activiteiten te organiseren. Deze ruimte heeft ENKA-huis als werktitel.
Ook komt in de Westhal een nieuwe boulderhal, genaamd Silk Bouldergym, waarvoor onlangs het huurcontract met BOEi is getekend. De boulderhal van circa 1.700 vierkant meter groot, komt in het zuidelijk deel van de Westhal en zal naar verwachting in maart 2027 de deuren openen voor publiek.
"Samen met de gemeente werken wij aan de nieuwe invulling van de Westhal. De boulderhal is een mooie eerste stap in die nieuwe invulling waarmee de Westhal een publieksfunctie voor de wijk en omstreken krijgt." Han WartnaOntwikkelingsmanager BOEi
Verder komen er kantoorruimtes voor commerciële- en economische functies. Ook willen we ruimte creëren voor creativiteit in de vorm van makersplaatsen. 

Monumentaal Enka

De Westhal is één van de acht rijksmonumenten op het voormalige ENKA-fabrieksterrein in Ede. BOEi is sinds 2002 betrokken bij de herbestemming en is naast eigenaar van de Westhal ook eigenaar van het Kantinegebouw en de twee schoorstenen op het terrein. De rijksmonumenten zijn in de afgelopen jaren gerestaureerd en herbestemd, waardoor ze een prominente plek blijven innemen in de woonwijk. De Westhal is met 1.650 zonnepanelen op het dak het grootste zelfvoorzienende rijksmonument in Nederland.
loading

Loading articles...

Loading